970 NE 92nd St , Miami Shores, FL 33138
  • $1,885,000
  • $1,890,000

Overview

Property ID: MSA11694849
  • Single Family Residence, Residential
  • Property Type
  • 7
  • Bedrooms
  • 7
  • Bathrooms
  • 2359 Sqft
  • Area Size
  • 1952
  • Year Built

Description

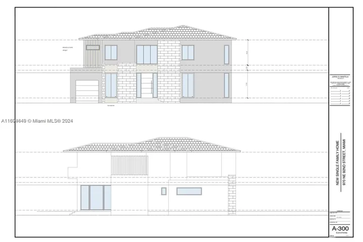
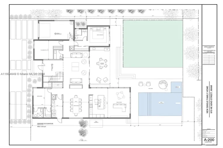
DON’T MISS THIS OPPORTUNITY!! 5540 SF U/AC + 250 SF 1 CAR GARAGE + 500 SF TERRACEThis land is located in Miami Shores. Ready to start a new construction, PLANS PASSED THE ARCHITECTURAL BOARD and is now under review by the building department. Construction to begin within the next 6 months, to build an elegant and modern house, as shown in the plans attached and in the pictures. Triple-A location Houses of Worship, Schools East Miami Shores, and Miami Country Day School. READY TO BE DEVELOPED Now You can use your contractor or the Seller will build for you a VERY LARGE 13,300 S/FT, The ONLY VACANT RESIDENTIAL LOT AVAILABLE, Take advantage of all Miami Shores has to offer, Country Club/GOLF course. Located minutes from the beaches, Bal Harbour, the Design District, MIA & FLL airports.

  • Address: 970 NE 92nd St
  • City: Miami Shores
  • State/county: FL
  • Zip/Postal Code: 33138
  • Area: AMD PL GOLDEN GATE PK

Details

Updated on April 22, 2026 at 4:26 am
  • Property ID MSA11694849
  • Price $1,885,000
  • Property Size 2359 Sqft
  • Bedrooms 7
  • Bathrooms 7
  • Garage Size x x
  • Year Built 1952
  • Property Type Single Family Residence, Residential
  • Property Status Active
  • MLS# A11694849

Additional details

  • Listing Terms Cash, Conventional
  • Roof Other
  • Sewer Public Sewer
  • Cooling Central Air
  • Heating Other
  • Flooring Other
  • County Miami-Dade
  • Property Type Residential
  • Pool None
  • Parking Other
  • Architectural Style Detached, Other

Mortgage Calculator

Schedule a Tour

Your information

360° Virtual Tour

Contact Information

View Listings
Montesol Realty Inc

Enquire About This Property

0 Review

Sort by:
Leave a Review

Leave a Review

Similar Listings

Compare listings

Compare

Mortgage Calculator