1917 Harding St , Hollywood, FL 33020
  • $715,000
  • $755,000

Overview

Property ID: MSA11798082
  • Land, Residential
  • Property Type

Description

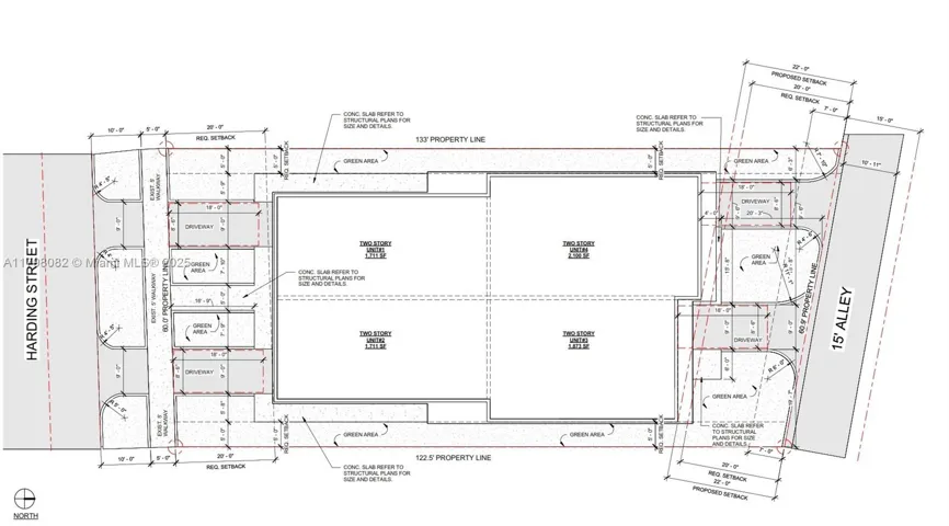
Approved plans with construction documents to build a 4-unit building. All units are 3-bedroom 2.5 bathrooms, plus a garage. The total living area is 5,964 sq ft, and the total gross area is 7395 sq ft.
Plans are attached.

  • Address: 1917 Harding St
  • City: Hollywood
  • State/county: FL
  • Zip/Postal Code: 33020
  • Area: HOLLYWOOD ESTATES

Details

Updated on April 27, 2026 at 7:20 pm
  • Property ID MSA11798082
  • Price $715,000
  • Land Area 0.177 Acres
  • Garage Size x x
  • Property Type Land, Residential
  • Property Status Active
  • MLS# A11798082

Additional details

  • Listing Terms Cash, Conventional, Cryptocurrency
  • Sewer Public Sewer
  • County Broward
  • Property Type Land

Mortgage Calculator

Schedule a Tour

Your information

360° Virtual Tour

Contact Information

View Listings
Montesol Realty Inc

Enquire About This Property

0 Review

Sort by:
Leave a Review

Leave a Review

Similar Listings

Compare listings

Compare

Mortgage Calculator