1891 N 61st Ave , Hollywood, FL 33024
  • $209,900
  • $215,000

Overview

Property ID: MSA11925765
  • Condominium, Residential
  • Property Type
  • 2
  • Bedrooms
  • 2
  • Bathrooms
  • 1451 Sqft
  • Area Size
  • 1984
  • Year Built

Description

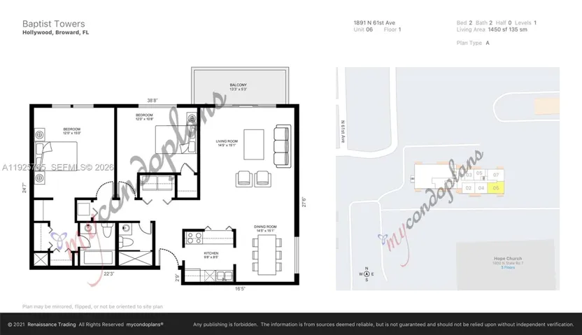
Bright and spacious 2-bedroom, 2-bath corner unit on the first floor, offering 1,451 sq ft of living space. Features include new premium laminate flooring, a new AC and water heater, a new electrical panel, updated ceiling fans, accordion hurricane shutters on all windows, and an in-unit washer and dryer. Baptist Towers is a well-maintained building with secure lobby access, nestled in a tranquil setting yet close to major highways and area attractions. The building has passed its milestone inspection and boasts fully funded maintenance reserves with a new roof (2024). One assigned parking spot right in front, and plenty of guest parking. 20 minutes to the beach, close to major roadways and area attractions! All ages welcome. Quick and easy association approval. No assessments! Rentals not permitted. Monthly maintenance covers water, trash, insurance, pest control, and reserves. Copies of recent four-point and wind mitigation inspections are available. Schedule your appointment today!

  • Address: 1891 N 61st Ave
  • City: Hollywood
  • State/county: FL
  • Zip/Postal Code: 33024
  • Area: BAPTIST TOWERS CONDO

Details

Updated on April 14, 2026 at 1:39 pm
  • Property ID MSA11925765
  • Price $209,900
  • Property Size 1451 Sqft
  • Bedrooms 2
  • Bathrooms 2
  • Garage Size x x
  • Year Built 1984
  • Property Type Condominium, Residential
  • Property Status Active
  • MLS# A11925765

Additional details

  • Listing Terms Cash, Conventional
  • Association Fee 519.0
  • Utilities Cable Available
  • Cooling Central Air,Ceiling Fan(s)
  • Heating Central
  • Flooring Laminate
  • County Broward
  • Property Type Residential
  • Parking Assigned,Guest,Two or More Spaces
  • Elementary School Sheridan Hills
  • Middle School Driftwood
  • High School Mcarthur

Mortgage Calculator

Schedule a Tour

Your information

360° Virtual Tour

Contact Information

View Listings
Montesol Realty Inc

Enquire About This Property

0 Review

Sort by:
Leave a Review

Leave a Review

Similar Listings

Compare listings

Compare

Mortgage Calculator